Na prenájom: Priestranný 2-izbový byt v tehlovom dome, Banská Štiavnica – Pavla Dobšinského Pavla Dobšinského, Banská Štiavnica
- : 2 izbový byt
- : 70.11 m²
- 2 izb.
- ID 9926 / Pridané 07.01.2026
POPIS NEHNUTEĽNOSTI
Základné informácie:• Lokalita: Pavla Dobšinského, Banská Štiavnica
• Typ: 2-izbový byt
• Výmera: 70,11 m²
• Poschodie: 2/2
• Stav: rekonštruovaný byt v tehlovej budove
• Parkovanie: verejné v blízkosti domu
• Internet: áno
• Voľný: ihneď
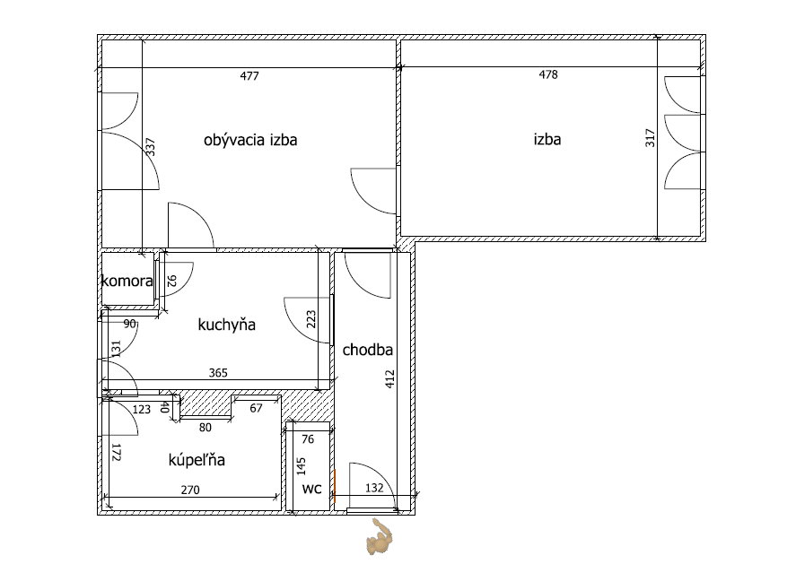
Dispozícia a vybavenie:
Byt sa nachádza na 2. poschodí tehlového domu v pokojnej lokalite s výbornou dostupnosťou. Dispozícia:
• vstupná chodba s priestorom na vstavanú skriňu
• samostatná toaleta
• kúpeľňa so sprchovým kútom, umývadlom, práčkou a oknom na vetranie
• kuchyňa s malou komorou
• priestranná obývacia izba
• samostatná spálňa s dostatkom denného svetla (orientácia na juh)
Byt prešiel čiastočnou rekonštrukciou – plastové okná, bezpečnostné dvere Sherlock, nový obklad v kúpeľni. Podlahy: v izbách zachovalé drevené parkety, v chodbe a kuchyni dlažba.
Prenajíma sa plne zariadený a vybavený – stačí sa nasťahovať.
Cena a podmienky prenájmu:
• Mesačné nájomné vrátane energií (pre 2 osoby): 600 €
• Platba pri podpise zmluvy: 2x. nájom + 1 depozit
• Domáce zvieratá: po dohode
• Zmluva: min. na 1 rok
• Energetický certifikát: nie je k dispozícii
Okolie nehnuteľnosti:
Lokalita ponúka tichú atmosféru len 5 minút od centra Banskej Štiavnice. V pešej dostupnosti sa nachádza potraviny, škola, škôlka, pošta, lekáreň, reštaurácie, zdravotné stredisko aj MHD.
Byt je vhodný pre nájomníkov, ktorí hľadajú pokojné bývanie s kompletným zázemím a blízkosťou k centru historického mesta.
POPIS NEHNUTEĽNOSTI
Základné informácie:• Lokalita: Pavla Dobšinského, Banská Štiavnica
• Typ: 2-izbový byt
• Výmera: 70,11 m²
• Poschodie: 2/2
• Stav: rekonštruovaný byt v tehlovej budove
• Parkovanie: verejné v blízkosti domu
• Internet: áno
• Voľný: ihneď
Dispozícia a vybavenie:
Byt sa nachádza na 2. poschodí tehlového domu v pokojnej lokalite s výbornou dostupnosťou. Dispozícia:
• vstupná chodba s priestorom na vstavanú skriňu
• samostatná toaleta
• kúpeľňa so sprchovým kútom, umývadlom, práčkou a oknom na vetranie
• kuchyňa s malou komorou
• priestranná obývacia izba
• samostatná spálňa s dostatkom denného svetla (orientácia na juh)
Byt prešiel čiastočnou rekonštrukciou – plastové okná, bezpečnostné dvere Sherlock, nový obklad v kúpeľni. Podlahy: v izbách zachovalé drevené parkety, v chodbe a kuchyni dlažba.
Prenajíma sa plne zariadený a vybavený – stačí sa nasťahovať.
Cena a podmienky prenájmu:
• Mesačné nájomné vrátane energií (pre 2 osoby): 600 €
• Platba pri podpise zmluvy: 2x. nájom + 1 depozit
• Domáce zvieratá: po dohode
• Zmluva: min. na 1 rok
• Energetický certifikát: nie je k dispozícii
Okolie nehnuteľnosti:
Lokalita ponúka tichú atmosféru len 5 minút od centra Banskej Štiavnice. V pešej dostupnosti sa nachádza potraviny, škola, škôlka, pošta, lekáreň, reštaurácie, zdravotné stredisko aj MHD.
Byt je vhodný pre nájomníkov, ktorí hľadajú pokojné bývanie s kompletným zázemím a blízkosťou k centru historického mesta.
Táto inzercia nie je verejnou ponukou na uzavretie zmluvy. Vlastník si vyhradzuje právo voľby o tom, komu a za akých dojednaných podmienok prevedie svoje vlastnícke právo.
Pri tejto ponuke je možné licitovať kúpnu cenu podľa všeobecných podmienok licitácie v sieti Winners reality uverejnených na: www.winnersreality.sk/licitacia.



