3-izbový štýlový byt v rezidenčnom komplexe Borovicový háj, predaj, s kompletným zariadením, terasa, parking, Popradská, Košice Popradská, Košice - Západ
- : 3 izbový byt
- : 80 m²
- 3 izb.
- ID 9667 / Pridané 29.09.2025

POPIS NEHNUTEĽNOSTI
Ponúkame Vám na predaj štýlový a jedinečný 3-izbový byt v rezidenčnom komplexe Borovicový háj na Popradskej ulici v Košiciach. Rezidencia disponuje vlastnou recepciou a je strážená 24 hodín denne, čo zaručuje vysokú úroveň bezpečia a komfortu. Súčasťou komplexu je zelený oddychový vnútroblok, ako aj vlastné fitness centrum pre aktívny životný štýl.Byt sa predáva s kompletným zariadením (ako na fotkách) a v prípade záujmu je k bytu možné dokúpiť dve podzemné parkovacie miesta hneď pri vstupe do garáže.
ZÁKLADNÉ ÚDAJE:
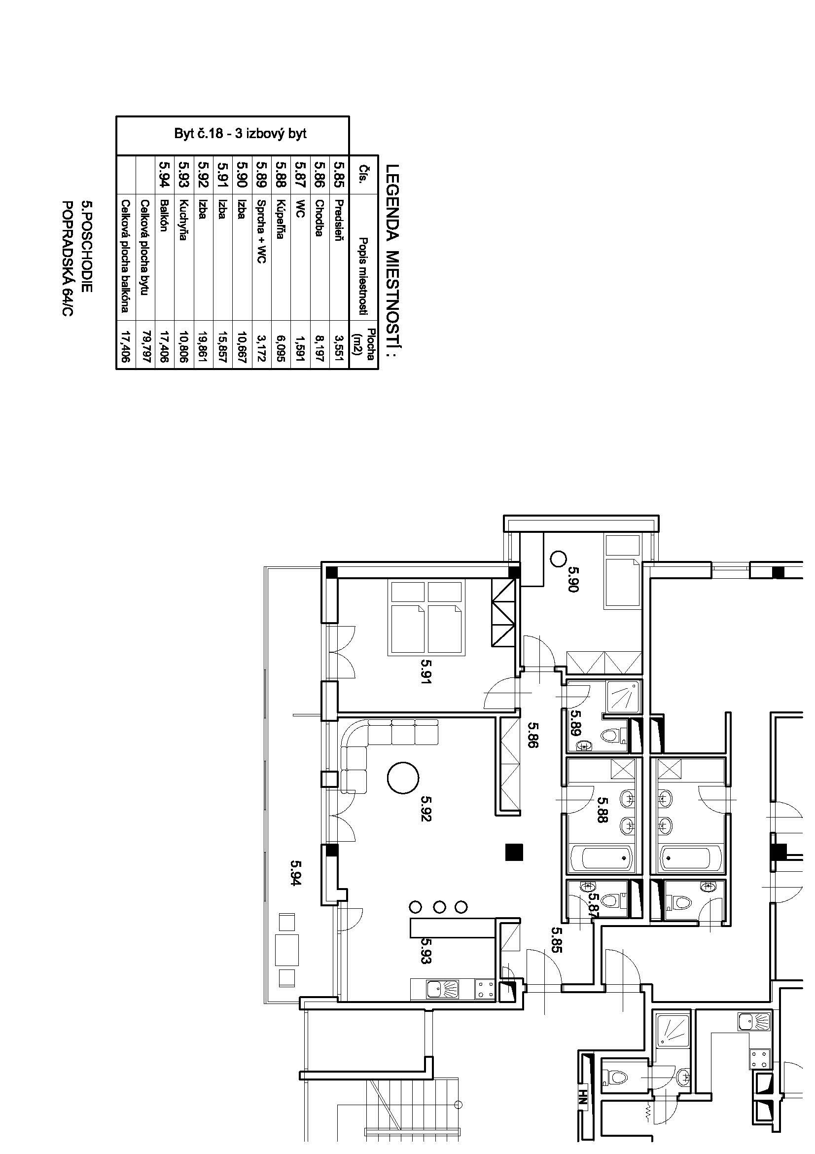
Predmet: 3-izbový byt, terasa, pivnica
Ulica: Popradská
Úžitková plocha: byt 80 m2 + terasa 17,4 m2 + pivnica 5 m2
Poschodie: 4/.5
Orientácia: JV+SZ
DISPOZÍCIA:
- z chodby je prístup do oddelenej toalety s umývadlom, obývacej izby s kuchyňou, kúpeľne, spálne, technickej miestnosti a ďalšej izby, všetky izby v byte sú nepriechodné
POPIS BYTU:
* byt sa predáva kompletne zariadený
* v kúpeľni je vaňa aj sprchový kút, prírodný kameň s obkladmi
* domáce kino DALI vrátane reproduktorov v strope
* nové vstavané spotrebiče Gorenje, nový digestor
* vstavané skrine v izbách v technickej miestnosti aj na chodbe
* nové klimatizačné jednotky v obývacej izbe a spálni
* posuvné interiérové dvere SAPELI
* kvalitná kuchynská linka DanKüchen
* batérie Hansgrohe
* v celom byte vrátane terasy je inteligentné osvetlenie Philips Hue
* z terasy bytu sú pekné výhľady na okolité prostredie
LOKALITA a OKOLIE:
* TOP lokalita s rýchlou dostupnosťou do centra mesta, množstvo zelene v okolí, hneď za bytovým domom je borovicový les
* kompletná občianska vybavenosť
* dopravná vybavenosť – mestská hromadná doprava, dobrá dostupnosť na okolité sídliská
CENA a PLATBA:
* cena nehnuteľnosti je 359.990,- Eur vrátane kompletného zariadenia bytu a pivnice (bola samostatne dokupovaná k bytu)
* možnosť dokúpiť si dve podzemné garážové miesta hneď pri vstupe do garáže
* dohoda na cene možná
Táto inzercia nie je verejnou ponukou na uzavretie zmluvy. Vlastník si vyhradzuje právo voľby o tom, komu a za akých dojednaných podmienok prevedie svoje vlastnícke právo. Pri tejto ponuke je možné licitovať kúpnu cenu podľa všeobecných podmienok licitácie v sieti Winners reality uverejnených na: www.winnersreality.sk/licitacia.
POPIS NEHNUTEĽNOSTI
Ponúkame Vám na predaj štýlový a jedinečný 3-izbový byt v rezidenčnom komplexe Borovicový háj na Popradskej ulici v Košiciach. Rezidencia disponuje vlastnou recepciou a je strážená 24 hodín denne, čo zaručuje vysokú úroveň bezpečia a komfortu. Súčasťou komplexu je zelený oddychový vnútroblok, ako aj vlastné fitness centrum pre aktívny životný štýl.Byt sa predáva s kompletným zariadením (ako na fotkách) a v prípade záujmu je k bytu možné dokúpiť dve podzemné parkovacie miesta hneď pri vstupe do garáže.
ZÁKLADNÉ ÚDAJE:
Predmet: 3-izbový byt, terasa, pivnica
Ulica: Popradská
Úžitková plocha: byt 80 m2 + terasa 17,4 m2 + pivnica 5 m2
Poschodie: 4/.5
Orientácia: JV+SZ
DISPOZÍCIA:
- z chodby je prístup do oddelenej toalety s umývadlom, obývacej izby s kuchyňou, kúpeľne, spálne, technickej miestnosti a ďalšej izby, všetky izby v byte sú nepriechodné
POPIS BYTU:
* byt sa predáva kompletne zariadený
* v kúpeľni je vaňa aj sprchový kút, prírodný kameň s obkladmi
* domáce kino DALI vrátane reproduktorov v strope
* nové vstavané spotrebiče Gorenje, nový digestor
* vstavané skrine v izbách v technickej miestnosti aj na chodbe
* nové klimatizačné jednotky v obývacej izbe a spálni
* posuvné interiérové dvere SAPELI
* kvalitná kuchynská linka DanKüchen
* batérie Hansgrohe
* v celom byte vrátane terasy je inteligentné osvetlenie Philips Hue
* z terasy bytu sú pekné výhľady na okolité prostredie
LOKALITA a OKOLIE:
* TOP lokalita s rýchlou dostupnosťou do centra mesta, množstvo zelene v okolí, hneď za bytovým domom je borovicový les
* kompletná občianska vybavenosť
* dopravná vybavenosť – mestská hromadná doprava, dobrá dostupnosť na okolité sídliská
CENA a PLATBA:
* cena nehnuteľnosti je 359.990,- Eur vrátane kompletného zariadenia bytu a pivnice (bola samostatne dokupovaná k bytu)
* možnosť dokúpiť si dve podzemné garážové miesta hneď pri vstupe do garáže
* dohoda na cene možná
Táto inzercia nie je verejnou ponukou na uzavretie zmluvy. Vlastník si vyhradzuje právo voľby o tom, komu a za akých dojednaných podmienok prevedie svoje vlastnícke právo. Pri tejto ponuke je možné licitovať kúpnu cenu podľa všeobecných podmienok licitácie v sieti Winners reality uverejnených na: www.winnersreality.sk/licitacia.