TOP CENA !!! Exkluzívne na predaj rodinný dom na priestrannom pozemku s výmerou 3 223 m² v obci Ilija Ilija, Ilija
- : rodinný dom
- : 95 m²
- 3 izb.
- : 3223 m²
- ID 9404 / Pridané 03.07.2025
POPIS NEHNUTEĽNOSTI
Ponúkame Vám exkluzívne na predaj rodinný dom na priestrannom pozemku s výmerou 3 223 m² v obci Ilija, okres Banská Štiavnica.Základné informácie:
• Lokalita: Ilija, okres Banská Štiavnica
• Stavby na pozemku: rodinný dom, pivnica, dreváreň
• Počet izieb: 3
• Rozloha pozemku: 3 223 m²
• Úžitková plocha domu: 95 m² + podkrovie
• Stav: čiastočná rekonštrukcia
• Celkové mesačné náklady: 100,- Eur
• Vzdialenosť do Banskej Štiavnice: cca 4 km
Zakreslenie pozemku je orientačné
Popis nehnuteľnosti:
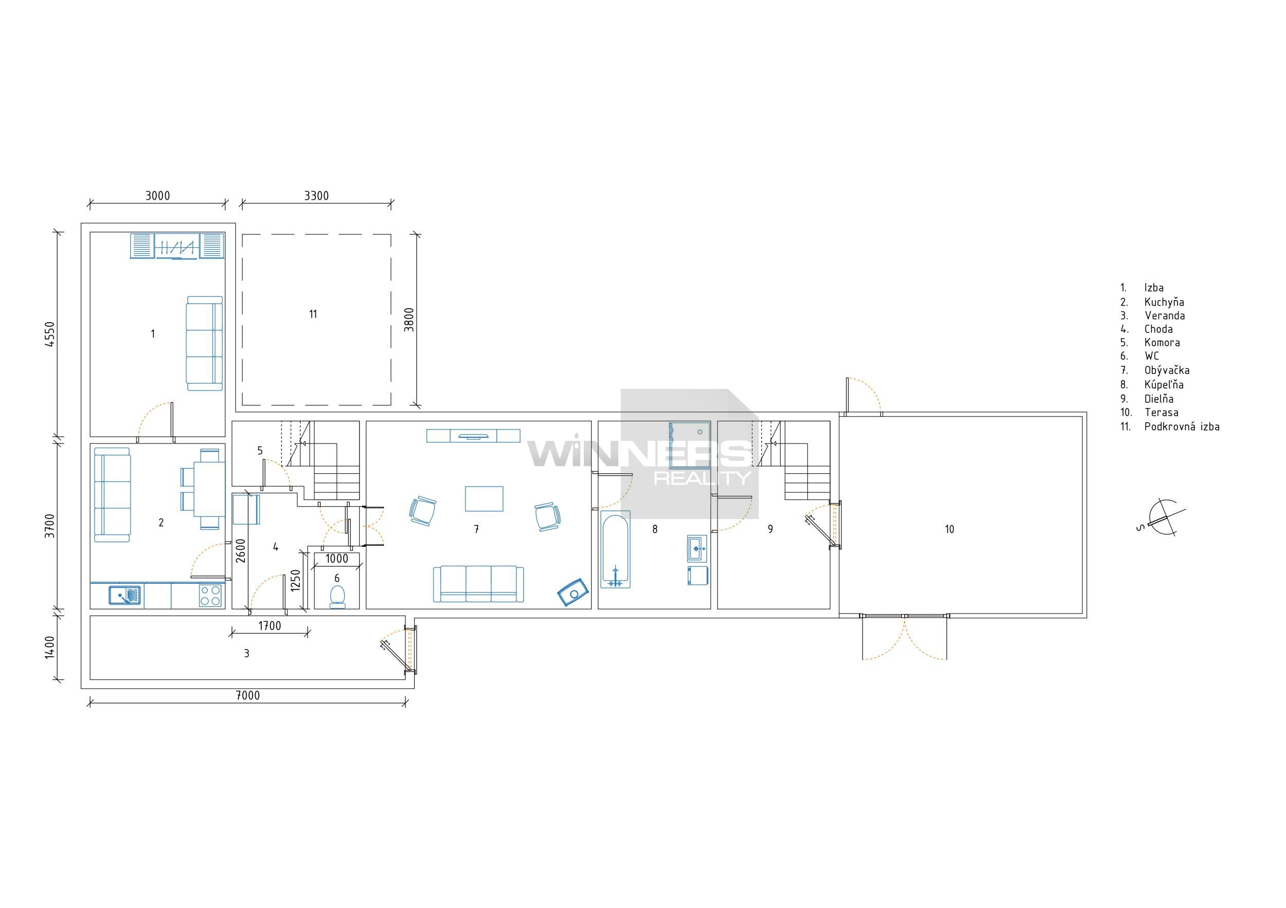
Rodinný dom pozostáva zo vstupnej verandy a chodby, na ktorej sa nachádza samostatná toaleta, komora a vstup do podkrovia. V podkroví je jedna samostatná izba a priestor s potenciálom na vytvorenie ďalších miestností po rekonštrukcii.
Po ľavej strane sa nachádza kuchyňa s murovanou pecou a jedna samostatná izba. Po pravej strane je obývacia izba, taktiež s pecou, a kúpeľňa vybavená vaňou, sprchovacím kútom a umývadlom. Za kúpeľňou je dielňa so vstupom do neobývanej podkrovnej časti a výstupom na zadnú časť pozemku, kde by mohla vzniknúť terasa alebo parkovacie miesto.
Na pozemku sa ďalej nachádzajú dve vedľajšie stavby – dreváreň a pivnica. Hlavnú časť pozemku s výmerou takmer 3 000 m² pokrýva záhrada s ovocnými stromami.
Dom prešiel čiastočnou rekonštrukciou – vymenené boli plastové okná vo verande, strešná krytina, fasáda, oplotenie, vnútorné podlahy, elektroinštalácia a ďalšie prvky.
Inžinierske siete:
• voda: obecná
• elektrina: áno
• plyn: áno
• odpad: žumpa
Celkový dojem makléra:
Nehnuteľnosť svojou veľkosťou ponúka výborné možnosti ako na celoročné bývanie, tak aj na rekreáciu. Výhodou je plynové kúrenie s možnosťou temperovania na diaľku a doplnkové vykurovanie pecou alebo krbom.
Pozemok je dobre udržiavateľný, až na rozsiahlu zadnú časť, ktorá by však bola ideálna napríklad na chov menších zvierat. Vrchná časť parcely poskytuje krásny výhľad na okolitú prírodu, čo výrazne zvyšuje atraktivitu celej nehnuteľnosti.
Cena a podmienky predaja:
• Cena nehnuteľnosti: 139.000,- € "PRI RÝCHLOM JEDNANÍ DOHODA MOŽNÁ !!!"
• Odovzdanie: ihneď
• Možnosť platby v hotovosti alebo hypotekárnym úverom (radi vám pomôžeme s jeho vybavením)
• Táto inzercia nie je verejnou ponukou na uzavretie zmluvy. Predávajúci si vyhradzuje právo rozhodnúť o kupujúcom a podmienkach prevodu vlastníctva.
• Možnosť licitácie kúpnej ceny podľa podmienok spoločnosti Winners Reality: www.winnersreality.sk/licitacia
Okolie nehnuteľnosti:
Obec Ilija ponúka pokojné vidiecke bývanie s občianskou vybavenosťou – potraviny, materská škola a blízkosť prírody. V okolí sa nachádza lyžiarsky vlek a množstvo turistických a cyklotrás vrátane výstupu na Sitno.
Banská Štiavnica, vzdialená len 10 minút autom, poskytuje kompletnú infraštruktúru – obchody, reštaurácie, školy a historické pamiatky. Viac o živote a podujatiach v regióne nájdete na www.banskastiavnica.sk.
POPIS NEHNUTEĽNOSTI
Ponúkame Vám exkluzívne na predaj rodinný dom na priestrannom pozemku s výmerou 3 223 m² v obci Ilija, okres Banská Štiavnica.Základné informácie:
• Lokalita: Ilija, okres Banská Štiavnica
• Stavby na pozemku: rodinný dom, pivnica, dreváreň
• Počet izieb: 3
• Rozloha pozemku: 3 223 m²
• Úžitková plocha domu: 95 m² + podkrovie
• Stav: čiastočná rekonštrukcia
• Celkové mesačné náklady: 100,- Eur
• Vzdialenosť do Banskej Štiavnice: cca 4 km
Zakreslenie pozemku je orientačné
Popis nehnuteľnosti:
Rodinný dom pozostáva zo vstupnej verandy a chodby, na ktorej sa nachádza samostatná toaleta, komora a vstup do podkrovia. V podkroví je jedna samostatná izba a priestor s potenciálom na vytvorenie ďalších miestností po rekonštrukcii.
Po ľavej strane sa nachádza kuchyňa s murovanou pecou a jedna samostatná izba. Po pravej strane je obývacia izba, taktiež s pecou, a kúpeľňa vybavená vaňou, sprchovacím kútom a umývadlom. Za kúpeľňou je dielňa so vstupom do neobývanej podkrovnej časti a výstupom na zadnú časť pozemku, kde by mohla vzniknúť terasa alebo parkovacie miesto.
Na pozemku sa ďalej nachádzajú dve vedľajšie stavby – dreváreň a pivnica. Hlavnú časť pozemku s výmerou takmer 3 000 m² pokrýva záhrada s ovocnými stromami.
Dom prešiel čiastočnou rekonštrukciou – vymenené boli plastové okná vo verande, strešná krytina, fasáda, oplotenie, vnútorné podlahy, elektroinštalácia a ďalšie prvky.
Inžinierske siete:
• voda: obecná
• elektrina: áno
• plyn: áno
• odpad: žumpa
Celkový dojem makléra:
Nehnuteľnosť svojou veľkosťou ponúka výborné možnosti ako na celoročné bývanie, tak aj na rekreáciu. Výhodou je plynové kúrenie s možnosťou temperovania na diaľku a doplnkové vykurovanie pecou alebo krbom.
Pozemok je dobre udržiavateľný, až na rozsiahlu zadnú časť, ktorá by však bola ideálna napríklad na chov menších zvierat. Vrchná časť parcely poskytuje krásny výhľad na okolitú prírodu, čo výrazne zvyšuje atraktivitu celej nehnuteľnosti.
Cena a podmienky predaja:
• Cena nehnuteľnosti: 139.000,- € "PRI RÝCHLOM JEDNANÍ DOHODA MOŽNÁ !!!"
• Odovzdanie: ihneď
• Možnosť platby v hotovosti alebo hypotekárnym úverom (radi vám pomôžeme s jeho vybavením)
• Táto inzercia nie je verejnou ponukou na uzavretie zmluvy. Predávajúci si vyhradzuje právo rozhodnúť o kupujúcom a podmienkach prevodu vlastníctva.
• Možnosť licitácie kúpnej ceny podľa podmienok spoločnosti Winners Reality: www.winnersreality.sk/licitacia
Okolie nehnuteľnosti:
Obec Ilija ponúka pokojné vidiecke bývanie s občianskou vybavenosťou – potraviny, materská škola a blízkosť prírody. V okolí sa nachádza lyžiarsky vlek a množstvo turistických a cyklotrás vrátane výstupu na Sitno.
Banská Štiavnica, vzdialená len 10 minút autom, poskytuje kompletnú infraštruktúru – obchody, reštaurácie, školy a historické pamiatky. Viac o živote a podujatiach v regióne nájdete na www.banskastiavnica.sk.



