Dvojgeneračný RD na predaj ● 5 izieb ● okrajová časť obce Veľká Ida Veľká Ida, Veľká Ida
- : rodinný dom
- : 111 m²
- 5 izb.
- : 1789 m²
- ID 10070 / Pridané 04.03.2026
POPIS NEHNUTEĽNOSTI
EXKLUZÍVNE Vám ponúkame na predaj 5 izbový rodinný dom v tichej okrajovej časti obce Veľká ida.Rodinný dom vhodný na dvojgeneračné bývanie skrz 2 samostatných vstupov.
Vhodné na investíciu na prenájom pre Volvo spoločnosť.
ZÁKLADNÉ ÚDAJE:
● Lokalita: Veľká Ida
● Predmet: rodinný dom
● Počet izieb: 5
● Zastavaná plocha podlažia: 111 m2
● Veľkosť pozemku: 1789 m2
● Stav: pôvodný stav
● Inžinierske siete: elektrina, plyn, miestny vodovod, žumpa
● Strecha: plechová
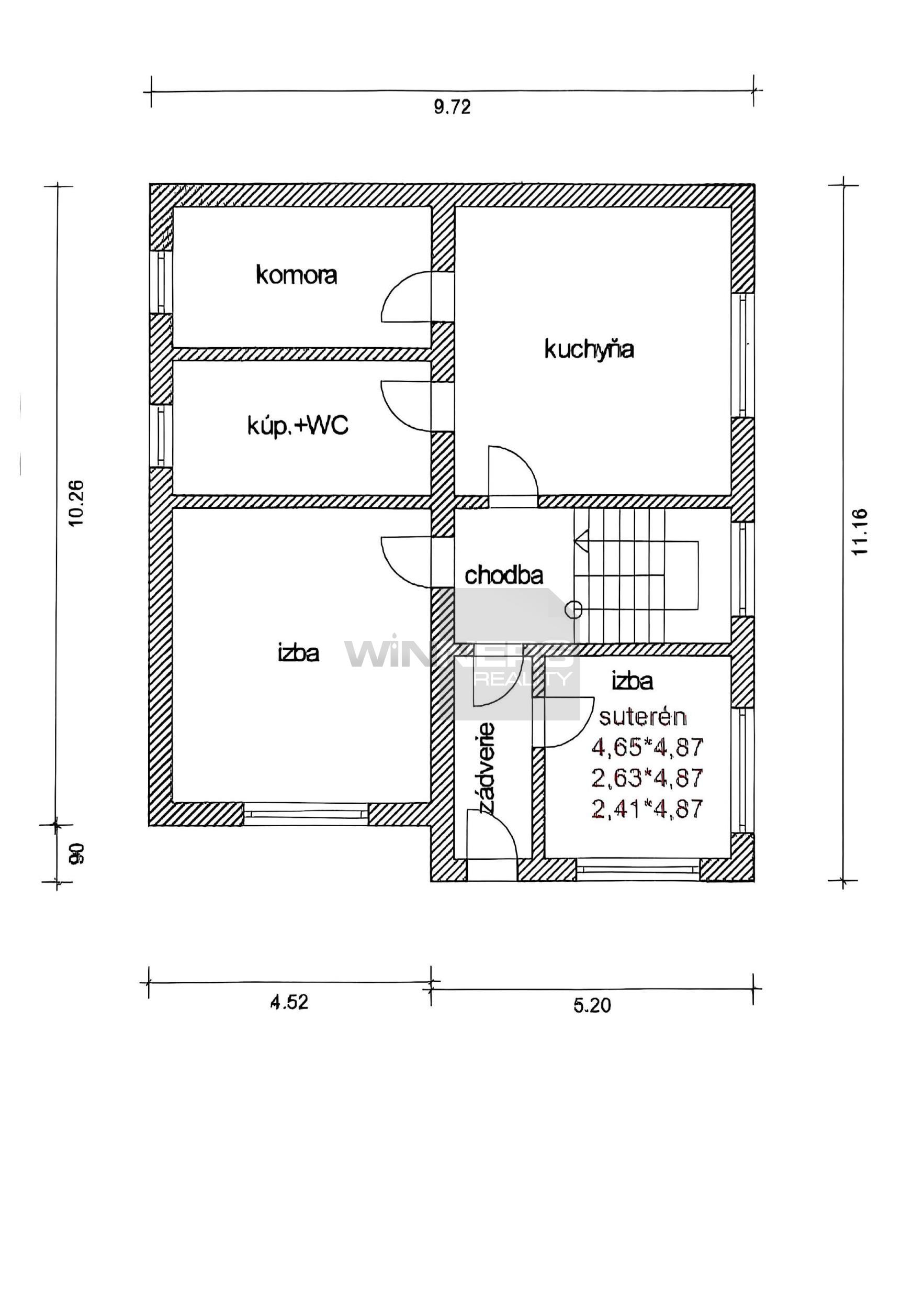
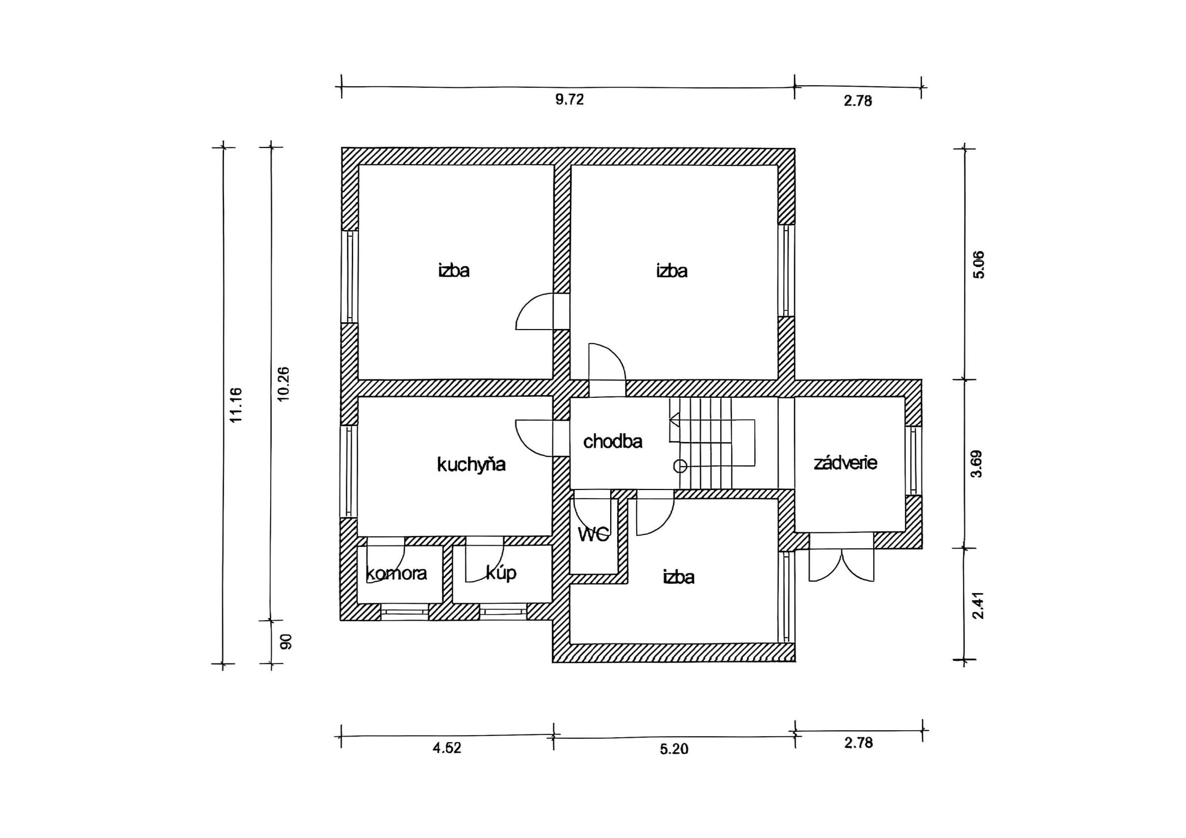
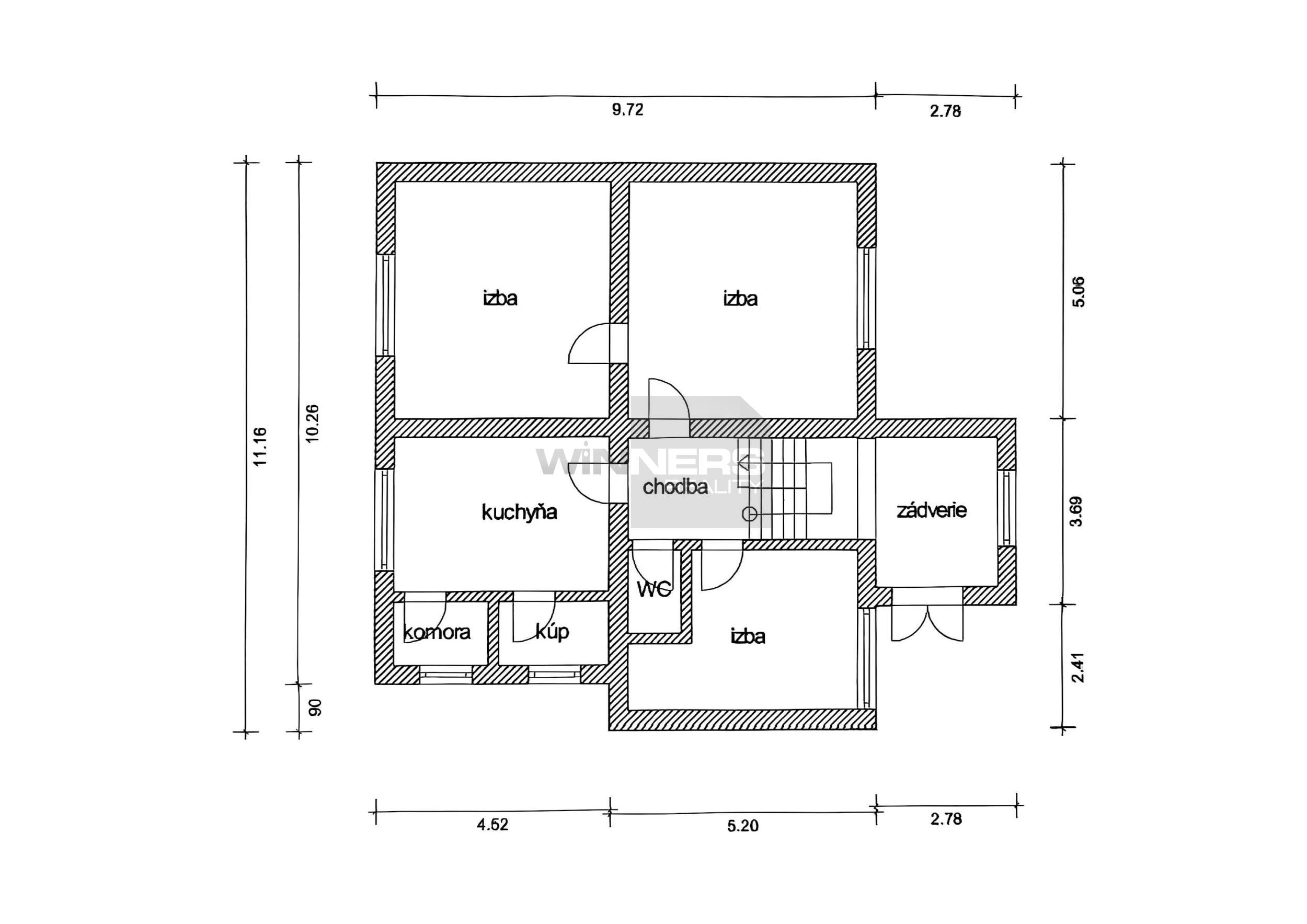
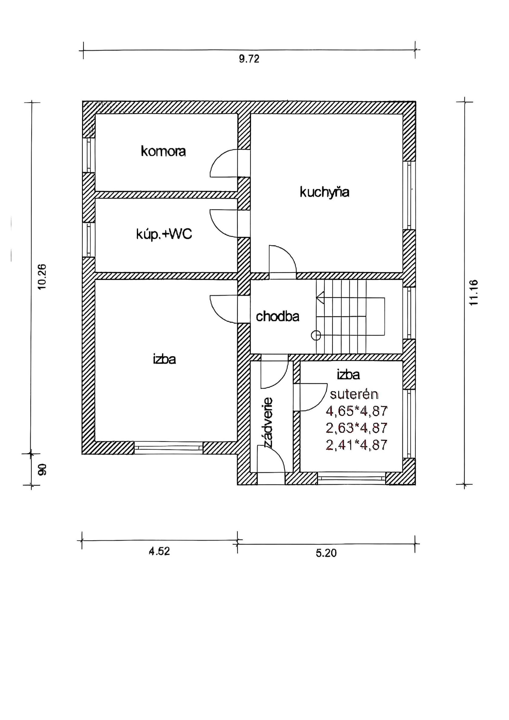
DISPOZÍCIA DOMU:
● 1. NP: zádverie, 2 izby, kuchyňa, kúpeľňa s toaletou, komora, chodba
● 2. NP: zádverie, 3 izby, kuchyňa, kúpeľňa, komora
● pivničné priestory
POPIS DOMU:
● útulný rodinný dom na rovinatom pozemku plnom zelenej plochy okolo
● rodinný dom s 2 samostatnými vstupmi
● dispozične vhodný na dvojgeneračné bývanie
● zachovalý pôvodný stav
● vhodný na rekonštrukciu podľa vlastných predstáv
● predná časť pozemku poskytuje priestor na pestovanie, sadenie, relax
● dom sa nachádza v tichej, okrajovej časti obce
● vhodný na rekonštrukciu na investíciu napríklad na prenájom pre spoločnosť Volvo
● pri prenájme je veľkým benefitom predná časť pozemku vhodná na parkovanie áut
● na pozemku sa nachádza garáž, hospodárska budova
● pozemok je čiastočne oplotený
LOKALITA A OKOLIE:
● obec je vzdialená 15 km od mesta Košice
● rodinný dom sa nachádza bližšie k obci Perín Chým
● v obci sa nachádza materská škola, základná škola, kaštieľ, rybník, potraviny, pizzéria, vlakové spojenie, autobusové spojenie
CENA A PLATBA:
● cena 189.999 eur
● nehnuteľnosť je možné financovať formou hypotekárneho úveru s ktorým Vám naši hypotekárny špecialisti radi pomôžu
● cena zahŕňa poplatky súvisiace s prevodom nehnuteľnosti, zápisom do katastra nehnuteľnosti, prepisom energií
Táto inzercia nie je verejnou ponukou na uzavretie zmluvy. Vlastník si vyhradzuje právo voľby o tom, komu a za akých dojednaných podmienok prevedie svoje vlastnícke právo. Pri tejto ponuke je možné licitovať kúpnu cenu podľa všeobecných podmienok licitácie v sieti Winners reality uverejnených na: www.winnersreality.sk/licitacia.
POPIS NEHNUTEĽNOSTI
EXKLUZÍVNE Vám ponúkame na predaj 5 izbový rodinný dom v tichej okrajovej časti obce Veľká ida.Rodinný dom vhodný na dvojgeneračné bývanie skrz 2 samostatných vstupov.
Vhodné na investíciu na prenájom pre Volvo spoločnosť.
ZÁKLADNÉ ÚDAJE:
● Lokalita: Veľká Ida
● Predmet: rodinný dom
● Počet izieb: 5
● Zastavaná plocha podlažia: 111 m2
● Veľkosť pozemku: 1789 m2
● Stav: pôvodný stav
● Inžinierske siete: elektrina, plyn, miestny vodovod, žumpa
● Strecha: plechová
DISPOZÍCIA DOMU:
● 1. NP: zádverie, 2 izby, kuchyňa, kúpeľňa s toaletou, komora, chodba
● 2. NP: zádverie, 3 izby, kuchyňa, kúpeľňa, komora
● pivničné priestory
POPIS DOMU:
● útulný rodinný dom na rovinatom pozemku plnom zelenej plochy okolo
● rodinný dom s 2 samostatnými vstupmi
● dispozične vhodný na dvojgeneračné bývanie
● zachovalý pôvodný stav
● vhodný na rekonštrukciu podľa vlastných predstáv
● predná časť pozemku poskytuje priestor na pestovanie, sadenie, relax
● dom sa nachádza v tichej, okrajovej časti obce
● vhodný na rekonštrukciu na investíciu napríklad na prenájom pre spoločnosť Volvo
● pri prenájme je veľkým benefitom predná časť pozemku vhodná na parkovanie áut
● na pozemku sa nachádza garáž, hospodárska budova
● pozemok je čiastočne oplotený
LOKALITA A OKOLIE:
● obec je vzdialená 15 km od mesta Košice
● rodinný dom sa nachádza bližšie k obci Perín Chým
● v obci sa nachádza materská škola, základná škola, kaštieľ, rybník, potraviny, pizzéria, vlakové spojenie, autobusové spojenie
CENA A PLATBA:
● cena 189.999 eur
● nehnuteľnosť je možné financovať formou hypotekárneho úveru s ktorým Vám naši hypotekárny špecialisti radi pomôžu
● cena zahŕňa poplatky súvisiace s prevodom nehnuteľnosti, zápisom do katastra nehnuteľnosti, prepisom energií
Táto inzercia nie je verejnou ponukou na uzavretie zmluvy. Vlastník si vyhradzuje právo voľby o tom, komu a za akých dojednaných podmienok prevedie svoje vlastnícke právo. Pri tejto ponuke je možné licitovať kúpnu cenu podľa všeobecných podmienok licitácie v sieti Winners reality uverejnených na: www.winnersreality.sk/licitacia.



